Будинки на продаж
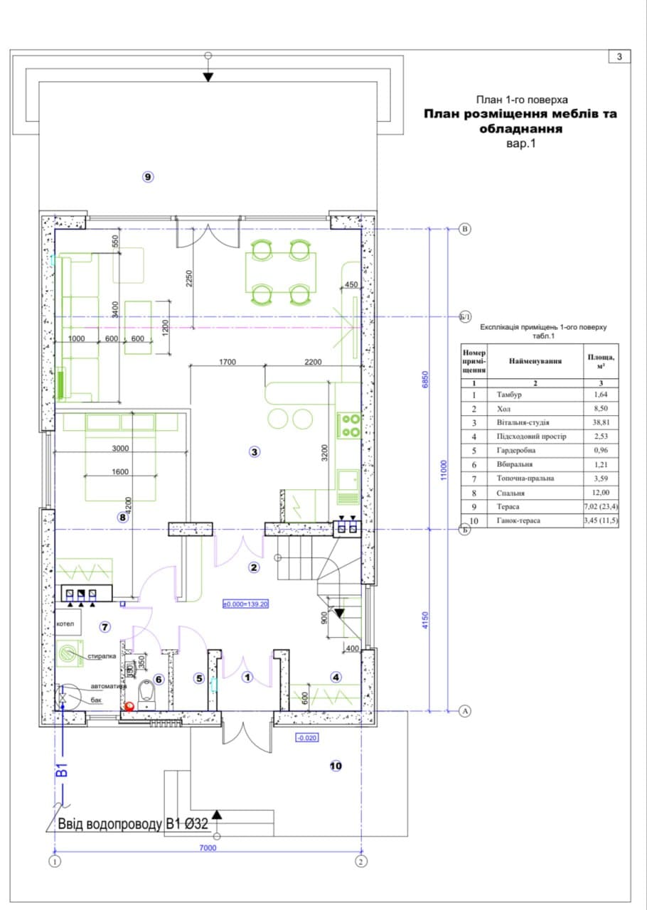
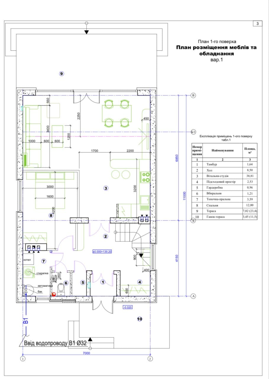
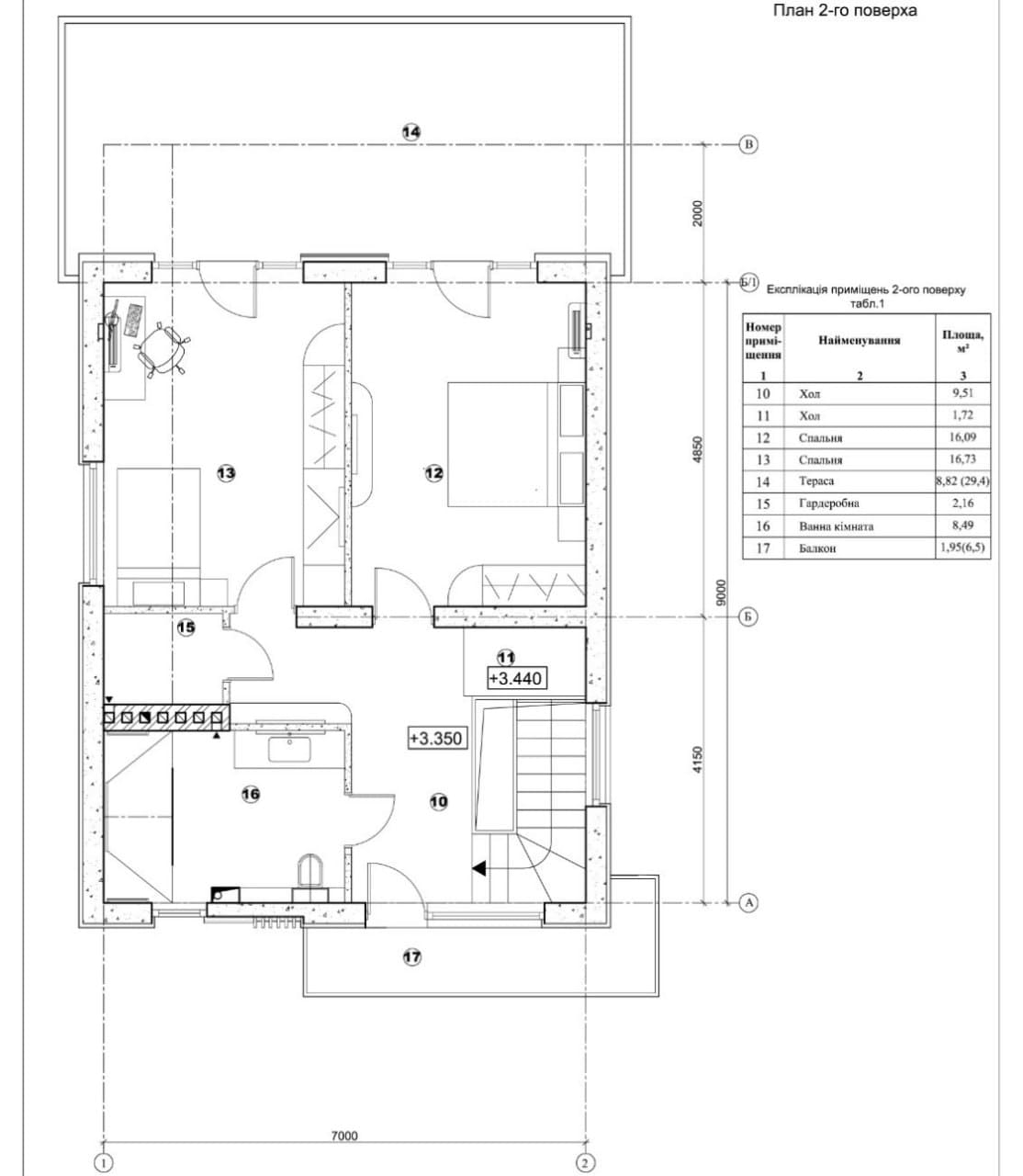
Котедж "Женева"
Видовий котедж "Женева" – стильний 2-поверховий будинок (150 м²) у кварталі "Озерний 3" під фінішне оздоблення.
✨ Простора кухня з панорамними вікнами, вітальня, 3 спальні, гардеробна, ванна кімната + гостьовий санвузол.
🌿 Тераса з виходом у ліс, зона BBQ.
📐 Ділянка: 8 соток
🔒 Охорона 24/7
⚡ Комунікації: 12 кВт світла, газ, інтернет
💧 Своя свердловина, біосептик
🚗 Крита парковка із зарядками для електромобілів
📞 066 1 980 980 – телефонуйте для деталей та перегляду!
🏠 Стан будинку: розведені комунікації, встановлені системи опалення, під ремонт. Можливо додатково зробити "під ключ" за 2 міс.
Котедж "Цюрих"
Видовий котедж "Цюрих" – стильний 2-поверховий будинок (150 м²) у кварталі "Озерний 3" під фінішне оздоблення.
✨ Простора кухня з панорамними вікнами, вітальня, 3 спальні, гардеробна, ванна кімната + гостьовий санвузол.
🌿 Тераса з виходом у ліс, зона BBQ.
📐 Ділянка: 8 соток
🔒 Охорона 24/7
⚡️ Комунікації: 12 кВт світла, газ, інтернет
💧 Своя свердловина, біосептик
🚗 Крита парковка із зарядками для електромобілів
📞 066 1 980 980 – телефонуйте для деталей та перегляду!
🏠 Стан будинку: розведені комунікації, встановлені системи опалення, під ремонт. Можливо додатково зробити "під ключ" за 2 міс.
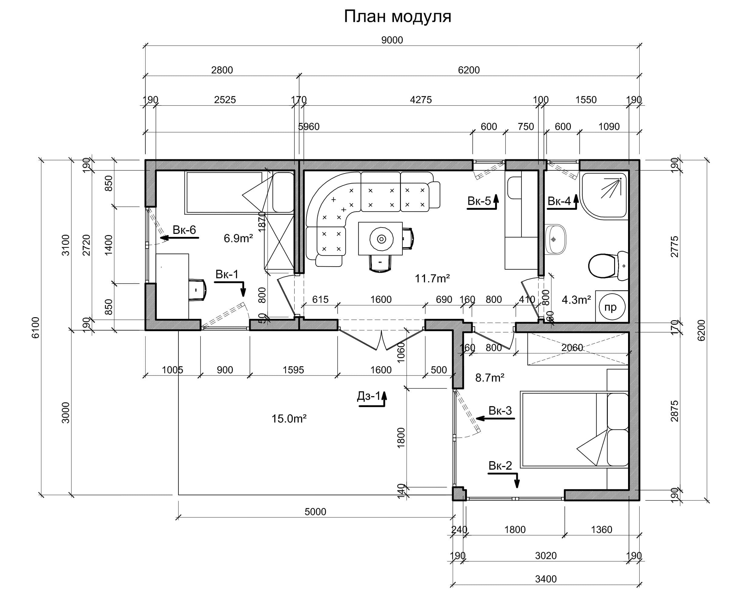
Готовий модульний будинок РЕЗЕРВ
Затишний модульний будинок з ремонтом (38м²), готовий до заселення.
📍 Локація: "Сосновий" квартал, серед дорослих сосен
✨ 2 спальні з чудовим видом, кухня, санвузол, тераса
🌿 Неймовірний ландшафт, тиша та природа
📐 Ділянка: 12 соток
🔒 Охорона 24/7
⚡ Комунікації: 10 кВт світла, газ, інтернет
📞 066 1 980 980 – телефонуйте для деталей та перегляду!
Котедж "Монблан"
Енергоефективний будинок "під ключ" від забудовника в кварталі "Озерний 3" — готовий до заселення!
✅ Площа: 160 м²
🛏 3 спальні
🛁 2 санвузли + сауна
🏗 Тільки якісні матеріали: Rehau, Velux, Shinglas
📐 Ділянка: 10 соток
💥 Купуй сьогодні — заселяйся вже завтра!
📞 066 1 980 980 – телефонуйте для деталей та перегляду!
